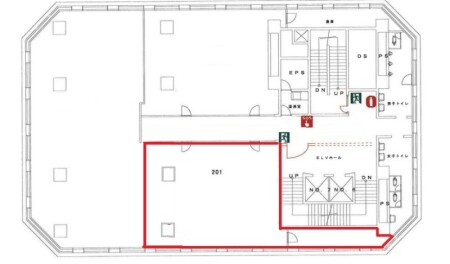
| 所在地 | 東京都港区新橋2丁目21-1 新橋駅前ビル2号館 201号室 | ||
|---|---|---|---|
| 最寄り駅 | JR山手線「新橋」駅徒歩1分 東京メトロ銀座線「新橋」駅徒歩3分 |
||
| 専有面積 | 28.36坪 | 天井高 | 2550mm |
| 構造 | SRC 地上9階・地下4階 | 所在階 | 2階部分 |
| 築年月 | 1966年08月 | 仲介手数料 | 賃料の1ヶ月分(別途消費税) |
| 賃料 | 530,200円 (税込) | 管理費 / 共益費 | (賃料に含む) |
| 敷金・保証金 | 6ヶ月(税込賃料・共益費) | 礼金 | - |
| 敷引・償却 | 1ヶ月(税込賃料・共益費) | ||
| 現況 | 空室 | 引渡 | 即時 |
| 契約期間 | 定借3年 | 契約満了時期 | - |
| 再契約料 | 1ヶ月(税込賃料・共益費) | 看板掲出料 | - |
| 成約状態 | 募集中 | ||
| 設備容量 | 電灯30A / 動力なしA / ガスなしmm / 給水・排水 各なしmm | ||
| 設備・条件 | エレベーターあり , 共用トイレ , 男女別トイレ , 保証会社加入必須 , セントラル空調 |
||
| 備考 | ※室内に給排水なし。開館時間 土・平日 6:30~24:45 | ||
「新橋駅前ビル2号館 201号室」のお問い合わせ
内覧希望・物件詳細などはこちらからお気軽にお問い合わせください。
































JR新橋駅直結、徒歩1分!交通至便!(銀座線・都営浅草線・ゆりかもめ)