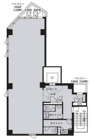
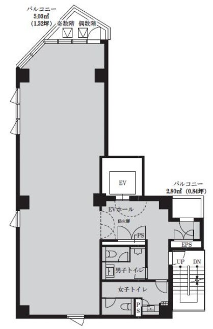
| 所在地 | 東京都港区新橋1丁目14-8 VORT新橋一丁目 7F | ||
|---|---|---|---|
| 最寄り駅 | JR山手線「新橋」駅徒歩3分 | ||
| 専有面積 | 40.08坪 | 天井高 | 3025mm |
| 構造 | 鉄骨造 地上14階 | 所在階 | 7階部分 |
| 築年月 | 2024年12月 | 仲介手数料 | 賃料の1ヶ月分(別途消費税) |
| 賃料 | 1,190,376円 (税込) | 管理費 / 共益費 | (賃料に含む) |
| 敷金・保証金 | 5ヶ月(保証会社加入時)無 | 礼金 | 無 |
| 敷引・償却 | 無 | ||
| 現況 | 空室 | 引渡 | 即時 |
| 契約期間 | 普通2年 | 契約満了時期 | - |
| 更新料 | 新賃料の1ヶ月分 | 看板掲出料 | 3,300円(税込) |
| 成約状態 | 成約済 | ||
| 設備・条件 | エレベーターあり , 1フロア1テナント , 24時間使用可 , 共用トイレ , 男女別トイレ , 保証会社加入必須 , エアコン , オートロック , バルコニー |
||
| 備考 | 土日・祝日利用可 保証会社(VRサポート、保証委託料1ヶ月) 火災保険 オートロック(1階、EV内、各階屋外階段に非接触型リーダー有) トイレ(ビル側で清掃実施※2025/12/1より) | ||
「VORT新橋一丁目 7F」のお問い合わせ
内覧希望・物件詳細などはこちらからお気軽にお問い合わせください。



























白基調とした明るい室内 セットアップフロア有 敷金ゼロプラン利用相談可