| 所在地 | 東京都港区新橋5丁目31-6 新橋MSTビル 1F | ||
|---|---|---|---|
| 最寄り駅 | JR山手線「新橋」駅徒歩8分 | ||
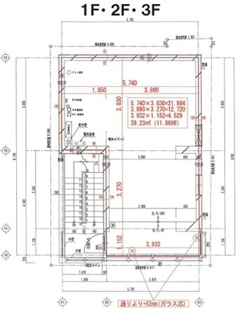
| 専有面積 | 11.86坪 | 天井高 | - |
| 構造 | RC 地上4階・地下1階 | 所在階 | 1階部分 |
| 築年月 | 2025年09月 | 仲介手数料 | 賃料の1ヶ月分(別途消費税) |
| 賃料 | 415,100円 (税込) | 管理費 / 共益費 | (賃料に含む) |
| 敷金・保証金 | 12ヶ月 | 礼金 | 1ヶ月 |
| 敷引・償却 | 2ヶ月 | ||
| 造作譲渡費用 | なし | ||
| 現況 | 空室 | 引渡 | 即時 |
| 契約期間 | 定借10年 | 契約満了時期 | - |
| 再契約料 | 新賃料の1ヶ月分 | 看板掲出料 | - |
| 成約状態 | 成約済 | ||
| 設備・条件 | 路面店 , 保証会社加入必須 |
||
| 備考 | 新耐震基準適合 敷金は総額を2回に分けて事業主の指定する方法で預託して頂きます。 火災保険要加入必須 看板設置費用は借主負担 | ||
「新橋MSTビル 1F」のお問い合わせ
内覧希望・物件詳細などはこちらからお気軽にお問い合わせください。






















新築物件!飲食可!