| 所在地 | 東京都港区新橋4丁目26-4 AIBA SHIMBASHI TOWER 4F | ||
|---|---|---|---|
| 最寄り駅 | JR山手線「新橋」駅徒歩4分 | ||
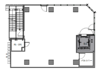
| 専有面積 | 27.06坪 | 天井高 | - |
| 構造 | 鉄骨造 地上11階 | 所在階 | 4階部分 |
| 築年月 | 2022年05月 | 仲介手数料 | 賃料の1ヶ月分(別途消費税) |
| 賃料 | 1,190,640円 (税込) | 管理費 / 共益費 | (賃料に含む) |
| 敷金・保証金 | 8ヶ月 | 礼金 | 無 |
| 敷引・償却 | 2ヶ月 | ||
| 造作譲渡費用 | なし | ||
| 現況 | 空室 | 引渡 | 即時 |
| 契約期間 | 普通2年 | 契約満了時期 | - |
| 更新料 | - | 看板掲出料 | - |
| 成約状態 | 申込あり/受付不可 | ||
| 設備・条件 | 新築 , エレベーターあり , 1フロア1テナント , 24時間使用可 , 保証会社加入必須 |
||
| 備考 | 風営法NG | ||
「AIBA SHIMBASHI TOWER 4F」のお問い合わせ
内覧希望・物件詳細などはこちらからお気軽にお問い合わせください。





















